Domy jednorodzinne
W naszych realizacjach znajdą Państwo domy parterowe, z poddaszem użytkowym, letniskowe, na wąską działkę oraz tanie w budowie. Są to projekty indywidualne, dopasowane do Państwa potrzeb. Zajmujemy się wszelkimi formalnościami do uzyskania pozwolenia na budowę.

Domy jednorodzinne projektujemy zawsze wg wymogów klienta i zasad które pozwalają na minimalizację kosztów tak budowy jak i użytkowania.
Uzyskujemy ten efekt stosując zwartą bryłę budynku. Podobnie rozmieszczając okna i drzwi kierujemy się nasłonecznieniem dbając zarówno o maksymalne światło zimą jak i walcząc z przegrzewaniem latem.
Również dobór materiałów konstrukcyjnych i systemów grzewczych pozwala na utrzymanie komfortu cieplnego niezależnie od pór roku.
Nie zapominamy nigdy o wyglądzie budynku tak na zewnątrz jak i we wnętrzach, dbając o indywidualny wyraz, harmonię z otoczeniem jak i preferencje stylistyczne zamawiającego.
Efekty widzicie Państwo na załączonych zdjęciach i wizualizacjach.
1. Projekt domu z dwoma wcięciami
Projektowany budynek jest obiektem mieszkalnym jednorodzinnym, parterowym z poddaszem użytkowym. Na parterze budynku znajdują się część dzienna domu, a w niej następujące pomieszczenia: hall, salon z jadalnią, kuchnia, łazienka, kotłownia, pracownia, garaż oraz schody na poddasze budynku. Na poddaszu domu znajdują się 4 pokoje sypialniane,dwie garderoby oraz łazienka.
Projekt domu w konstrukcji tradycyjnej murowanej. Bryła budynku jest prosta, prostokątna z dwoma wcięciami. Dach dwuspadowy o kalenicy równoległej do elewacji frontowej.
Powierzchnia użytkowa parteru: 106,11 m2
Powierzchnia użytkowa poddasza: 88,87 m2
Powierzchnia całkowita: 126,63 m2
2. Projekt domu z dużym przeszkleniem na ogród i garażem w bryle budynku
Projek budynku parterowego z użytkowym poddaszem, ze ścianką kolankową. Bryła budynku prostokątna z jednym delikatnym wysunięciem na parterze w części wypoczynkowej z widokiem na ogród i możliwością doprojektowania tarasu. Obiekt pokryty dachem wielospadowym o głównej kalenicy równoległej do elewacji frontowej i niższej kalenicy prostopadłej do elewacji frontowej.
Powierzchnia użytkowa parteru: 157,22 m2
Powierzchnia użytkowa poddasza: 45,56 m2
Powierzchnia całkowita: 202,78 m2
3. Projekt domu ze świetlikiem dachowym i sauną
Projekt domu w konstrukcji murowanej. Bryła budynku w kształcie litery „L”. Budynek parterowy z użytkowym poddaszem ze ścianką kolankową. Pokryty dwuspadowym dachem o kalenicy prostopadłej i równoległej do elewacji frontowej.
Powierzchnia całkowita: 137,00 m2
Powierzchnia użytkowa parteru: 113,58 m2
Powierzchnia użytkowa poddasza: 97,35 m2
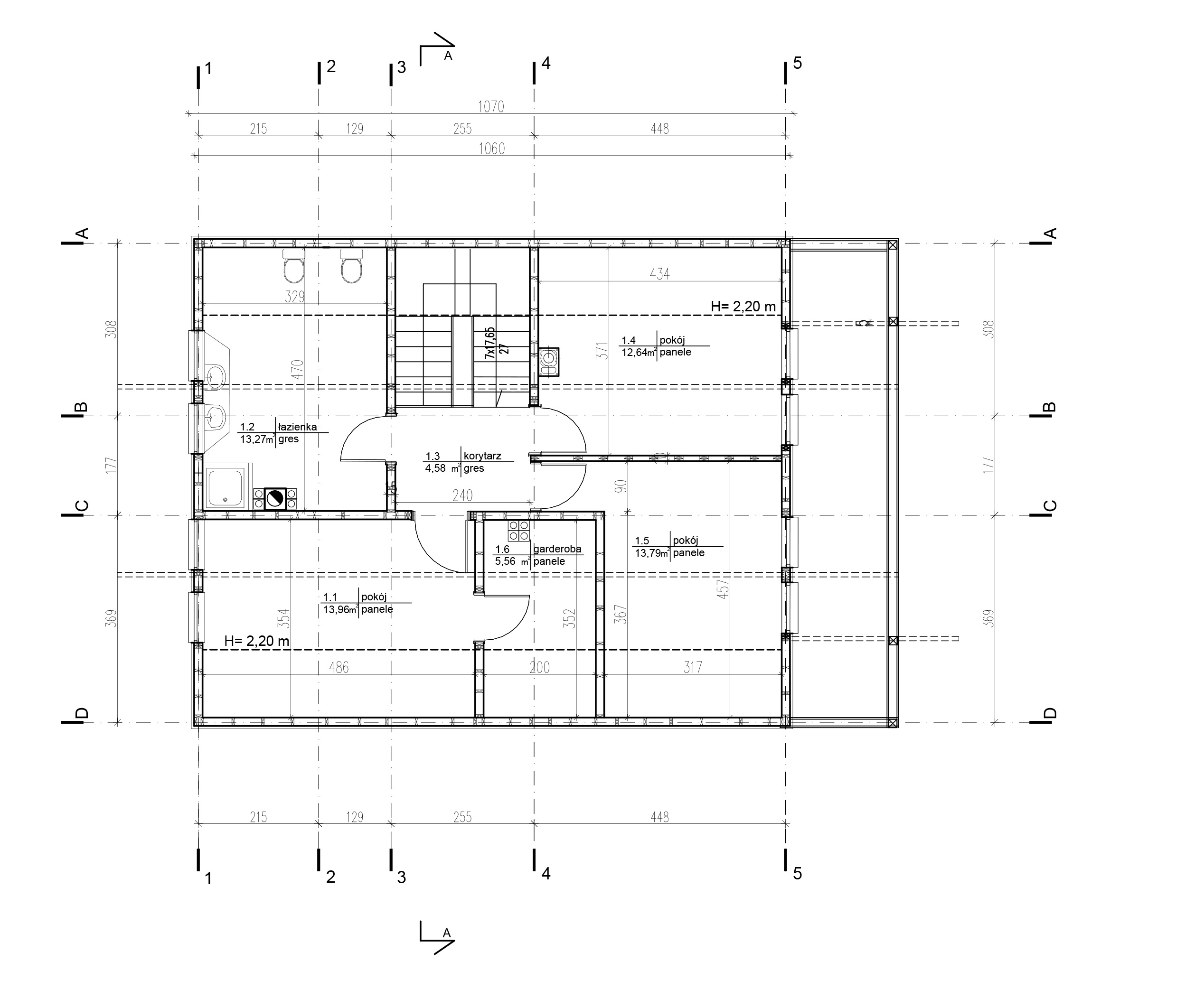
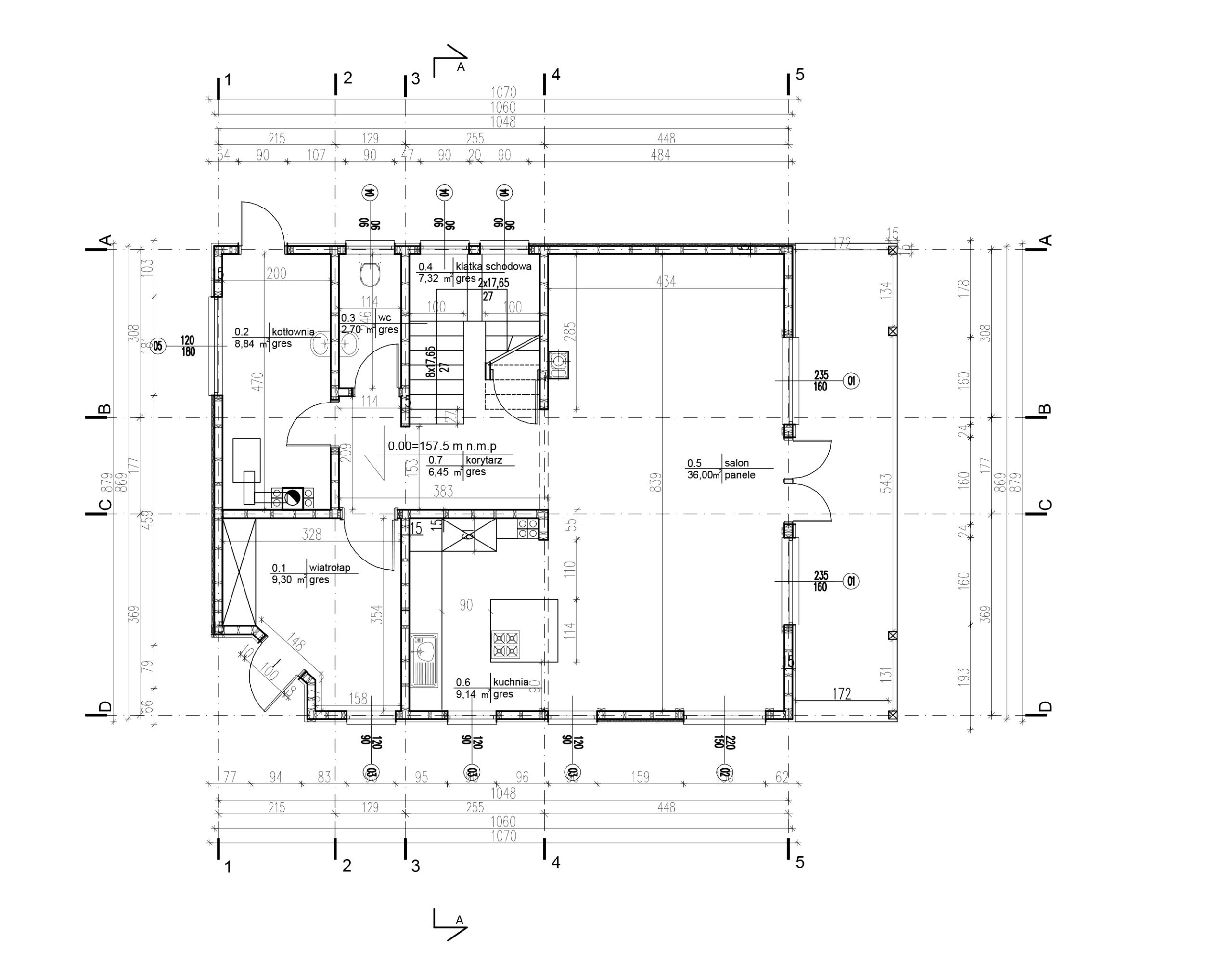
4. Projekt domu z wysokim sufitem w salonie
Projektowany budynek jest obiektem mieszkalnym jednorodzinnym, parterowym z poddaszem użytkowym. Na parterze budynku znajdują się część dzienna domu, a w niej następujące pomieszczenia: przedsionek, hol, salon z jadalnią, kuchnia, łazienka, kotłownia, pokój oraz schody na poddasze budynku. Na poddaszu domu znajdują się trzy pokoje sypialniane, garderoba oraz łazienka z pralnią (razem).
Bryła na planie kwadratu z dwoma wysunięciami na wejściu i od ogrodu z dużym przeszkleniem na piękny widok. W salonie zastosowano wysoki sufit na dwa piętra. Przestrzeń stała się jeszcze bardziej otwarta i przestronna.
Powierzchnia użytkowa parteru: 112,54 m2
Powierzchnia użytkowa poddasza: 85,21 m2
Powierzchnia całkowita: 203,88 m2
5. Projekt domu minimalistyczna stodoła
Projektowany budynek jest obiektem mieszkalnym jednorodzinnym, parterowym z poddaszem użytkowym. Na parterze budynku znajdują się część dzienna domu, a w niej następujące pomieszczenia: przedsionek, hol, salon z jadalnią, kuchnia, łazienka, kotłownia, pokój z funkcją biura lub pracowni oraz schody na poddasze budynku. Na poddaszu domu znajdują się trzy pokoje sypialniane, garderoba oraz łazienka z pralnią (razem). Posiada również otwarty sufit na piętro w salonie, dzięki czemu salon jest wysoki i przestronny.
Powierzchnia użytkowa parteru: 147,60 m2
Powierzchnia użytkowa poddasza: 84,55 m2
Powierzchnia użytkowa łącznie: 232,15 m2
6. Projekt domu w tradycyjnym stylu
7. Projekt domu z oknem narożnikowym
8. Projekt domu z tarasem
Projekt domu w konstrukcji szkieletowej. Bryła jest prosta, kwadratowa z wcięciem narożnika na wejściu. Budynek parterowy z poddaszem użytkowym i ścianką kolankową. Pokryty dachem dwuspadowym o głównej kalenicy równoległej do elewacji frontowej.
Powierzchnia całkowita: 147,55 m2
Powierzchnia zabudowy: 92,02 m2
9. Projekt domu z elewacją drewnianą
dwukondygnacyjny
10. Projekt domu z drewnianą elewacją
dwukondygnacyjny
Powierzchnia użytkowa łącznie: 211,10m2
Powierzchnia użytkowa parteru: 123,92m2
Powierzchnia użytkowa poddasza: 87,18m2
11. Projekt domu w konstrukcji tradycyjnej
murowanej
Powierzchnia użytkowa poddasza: 129,86m2
Powierzchnia użytkowa łącznie: 290,50m2
12. Projekt domu w konstrukcji tradycyjnej murowanej
Projekt domu w konstrukcji tradycyjnej murowanej. Budynek na rzucie kształcie litery L. Na wejściu znajdują się duże reprezentacyjne schody. Przestronne pomieszczenia oraz stonowana bryła nadaje projektowi cechy niedużej willi.
Powierzchnia użytkowa poddasza: 171,89m2
Powierzchnia użytkowa łącznie: 333,83m2